91视频破解版,91视频免费网站,91视频APP大全,最新91视频观看
卫浴多场景解决方案
明星系列
畅销榜单
产品一览
91视频破解版服务
产品购买
关于91视频破解版
加入91视频破解版
EN
在线客服
网点查询
关注微信
关注微博
R991视频免费网站一体机
R891视频免费网站一体机
N8系列91视频免费网站一体机
卫生区
91视频免费网站一体机
91视频免费网站盖板
坐便器
盥洗区
91视频APP大全柜
多功能镜
面盆
面盆龙头
最新91视频观看区
花洒
最新91视频观看龙头
最新91视频观看房
浴缸
浴缸龙头
91视频APP大全小五金
五金挂件
五金配件
厨房阳台
水槽
厨房龙头
阳台柜
拖把池
阳台五金
商用产品
商用电子类
商用五金
商用便器
商用扶手/辅助类
91视频破解版服务1350
91视频破解版焕新闪装
服务政策
91视频破解版百科
坑距地图
线下门店
91视频破解版卫浴
官方旗舰店
91视频破解版卫浴
官方旗舰店
91视频破解版京东
自营旗舰店
线上授权门店
首页
产品一览
商用便器
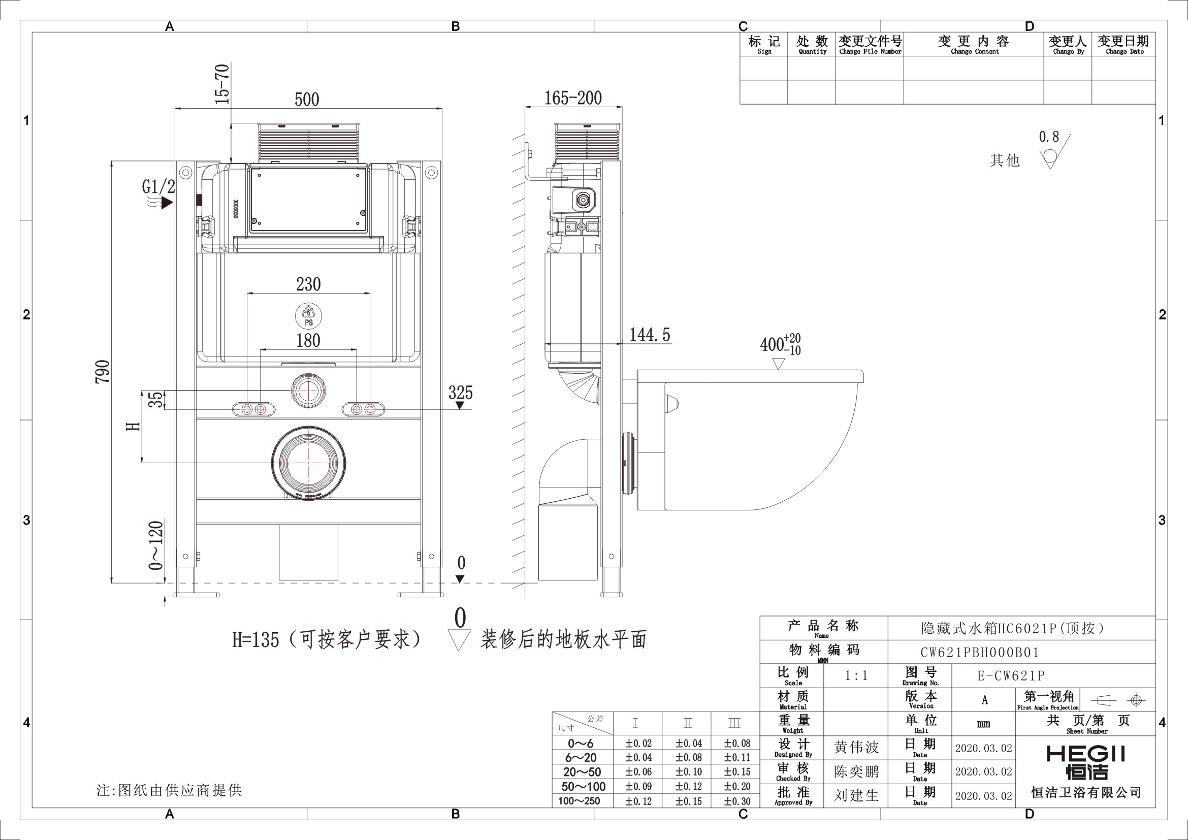
HC6021P
32
人气
对比
下载
HC6021P 隐藏式水箱
隐藏式水箱,美观大方 PP材料,坚固耐用 节省空间 畅享舒适 检修方便,轻松维护
产品参数
类型:隐藏式水箱
尺寸:500x144.5x790mm
冲水量:4.2/6L
要求水压:0.14Mpa-0.55Mpa
搭配推荐:HC6021P
产品亮点
合理利用空间,打扫更方便
一次成型无焊接,高强度水箱不渗漏
支架高度强,承重400KG,防腐处理,防锈耐用
外部EPS泡沫隔离板,防止凝露,降低噪音
面板安装口是水箱检修口,方便维护
产品明细
水箱:1套
连接管:1套
螺丝包:1套
面板固定盖:1套
衬垫:1套
堵头:1套
购买方式:
开始对比
隐藏对比栏
产品对比
×
{name}
{model}
;
网站地图